Georreferenciamento de imóveis

Clique nas imagens para ampliar

A Importância do georreferenciamento de imóveis

O georreferenciamento de imóveis é um processo fundamental para possibilitar a regularização e segurança jurídica de propriedades em todo o território nacional.

Através desse serviço, é possível padronizar as informações espaciais de cada propriedade, seguindo as normas estabelecidas pelo INCRA e pelo Registro de Imóveis.

Essa padronização é essencial para eliminar possíveis ambiguidades e possibilitar a integridade territorial dos imóveis.

Como a PROURB Realiza o Georreferenciamento?

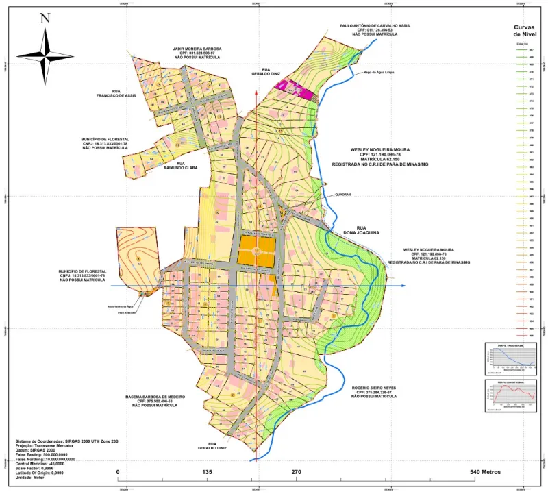
A PROURB, especializada em Regularização Fundiária Urbana e Engenharia Cartográfica, utiliza tecnologia de qualidade para realizar o georreferenciamento de imóveis.

A empresa emprega tecnologia GNSS de excelente precisão, que permite identificar a posição exata, forma e dimensões de cada propriedade, proporcionando a qualidade e confiabilidade dos dados obtidos.

Com sede em Nova Serrana, Minas Gerais, a PROURB atua em todo o território nacional, oferecendo serviços que vão desde o planejamento urbanístico até a assessoria jurídica especializada.

Vantagens do Referenciamento Geográfico Realizado pela PROURB

Além de possibilitar a conformidade técnica e jurídica das propriedades, o georreferenciamento realizado pela PROURB traz diversas vantagens para seus clientes.

Com a utilização de tecnologia própria, como o software RMS Urb, a empresa oferece:

  • Diagnósticos socioeconômicos precisos;
  • Aerolevantamento com drones;
  • Projetos de infraestrutura de excelente qualidade.

O suporte técnico prestado pela PROURB auxilia municípios e empresas na regularização de áreas irregulares, promovendo a integração dessas áreas ao contexto legal das cidades.

Integridade e Qualidade nos Serviços da PROURB

A precisão técnica aplicada nos levantamentos de campo realizados pela PROURB assegura a máxima qualidade em cada etapa do processo de georreferenciamento.

Cada vértice é registrado com rigor e excelência, proporcionando a precisão e confiabilidade dos dados obtidos.

Com uma equipe qualificada e experiente, a PROURB destaca-se no mercado pela sua expertise em Regularização Fundiária Urbana e Engenharia Cartográfica, oferecendo soluções excelentes e eficientes para seus clientes.

Entre em Contato com a PROURB e Regularize sua Propriedade!

Se o cliente busca por serviços de georreferenciamento de imóveis com qualidade e excelência, entre em contato com a PROURB.

A equipe está preparada para oferecer soluções sob medida para suas necessidades, proporcionando a regularização e segurança jurídica de sua propriedade.

Conte com a experiência e o profissionalismo da PROURB para obter bons resultados em Regularização Fundiária Urbana e Engenharia Cartográfica!

Entre em contato agora mesmo!

Clique no botão e entre em contato para tirar dúvidas ou solicitar um orçamento.

Entre em contato



Principais cidades e regiões do Brasil onde a Prourb atende Georreferenciamento de imóveis:


WhatsApp Prourb
Prourb www.grupoprourb.com.br Online
Fale com a gente pelo WhatsApp
×