Cadastro georreferenciado

Clique nas imagens para ampliar

A importância do cadastro georreferenciado na Regularização Fundiária Urbana

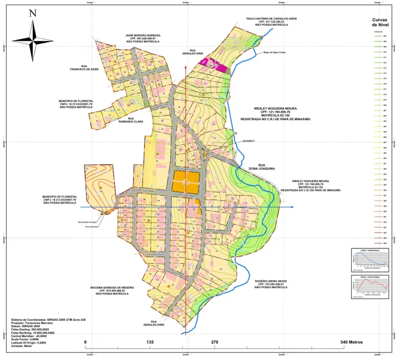
O cadastro georreferenciado é uma ferramenta essencial no processo de Regularização Fundiária Urbana (REURB), pois associa informações descritivas a coordenadas geográficas precisas, permitindo uma gestão territorial inteligente e eficiente.

A PROURB, empresa especializada nesse segmento, desenvolve o cadastro georreferenciado com expertise e tecnologia própria, visando proporcionar soluções de excelente padrão para prefeituras e gestores privados.

Vantagens do cadastro realizado pela PROURB

A PROURB utiliza metodologia excelente, como o software RMS Urb, para executar o cadastro georreferenciado com excelência.

Essa abordagem permite o cruzamento de dados espaciais com registros administrativos, facilitando a tomada de decisão e o planejamento de políticas públicas ou investimentos imobiliários.

Com uma visão clara e detalhada do território, é possível organizar o crescimento urbano de forma sustentável e com rigorosa qualidade.

Benefícios para prefeituras e gestores privados

Para prefeituras, o cadastro georreferenciado realizado pela PROURB possibilita o controle:

  • Ocupação do solo;
  • Redes de infraestrutura;
  • Bases tributárias.

Já para gestores privados, essa ferramenta é fundamental para o desenvolvimento de projetos imobiliários com base em informações precisas e atualizadas.

A integração do cadastro georreferenciado ao contexto legal das cidades viabiliza a regularização de áreas irregulares e entrega de títulos de propriedade.

O compromisso da PROURB com a excelência

A PROURB, sediada em Nova Serrana, Minas Gerais, consolidou sua experiência ao longo dos anos na prestação de serviços de regularização fundiária urbana e engenharia cartográfica.

Com uma equipe qualificada e uma abordagem personalizada para cada projeto, a empresa se destaca pela qualidade e eficiência de seus processos.

A PROURB atua em todo o território nacional, auxiliando municípios e empresas parceiras no desenvolvimento de soluções sob medida para suas necessidades.

Entre em contato e conheça os serviços de cadastro georreferenciado!

Se o cliente busca soluções excelentes em Regularização Fundiária Urbana e Engenharia Cartográfica, como o cadastro georreferenciado, a PROURB é a empresa ideal para atender às suas demandas.

Entre em contato e descubra como a empresa pode auxiliar no desenvolvimento de projetos com qualidade, precisão e excelência.

Conte com a experiência e o compromisso da PROURB para transformar desafios em oportunidades de crescimento e desenvolvimento urbano sustentável!

Entre em contato agora mesmo!

Clique no botão e entre em contato para tirar dúvidas ou solicitar um orçamento.

Entre em contato



Principais cidades e regiões do Brasil onde a Prourb atende Cadastro georreferenciado:


WhatsApp Prourb
Prourb www.grupoprourb.com.br Online
Fale com a gente pelo WhatsApp
×