Cartografia digital

Clique nas imagens para ampliar

A Importância da cartografia digital na Regularização Fundiária Urbana

A cartografia digital é uma ferramenta fundamental para a regularização fundiária urbana, pois permite a criação de mapas e representações gráficas precisas em ambiente computacional.

A PROURB, empresa especializada em engenharia cartográfica e regularização fundiária urbana, utiliza essa excelente tecnologia para possibilitar a conformidade jurídica e técnica de núcleos urbanos em todo o território nacional.

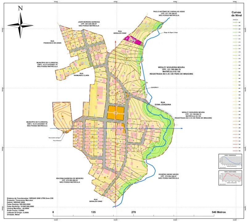
Como a PROURB Utiliza a Cartografia em seus Serviços?

Sediada em Nova Serrana, Minas Gerais, a PROURB emprega metodologias excelentes, como o software RMS Urb, para realizar:

  • Diagnósticos socioeconômicos;
  • Aerolevantamento com drones;
  • Projetos de infraestrutura;
  • Parcelamento de solo.

Através da cartografia digital, a empresa consegue converter levantamentos de campo em bases vetoriais para projetos de urbanismo, saneamento e regularização fundiária, proporcionando precisão e qualidade em suas entregas.

Vantagens da cartografia digital na Regularização Fundiária

A utilização da cartografia digital elimina distorções comuns nos mapas de papel, oferecendo camadas de informação que podem ser facilmente atualizadas em tempo real.

Isso é essencial para a modelagem de cidades inteligentes e para o registro preciso das propriedades, facilitando a integração de áreas irregulares ao contexto legal das cidades de forma eficiente e segura.

Benefícios da Tecnologia na Prestação de Serviços da PROURB

A PROURB destaca-se no mercado por oferecer suporte técnico a municípios e empresas parceiras, focando no processamento de Regularizações Fundiárias de Interesse Social (REURB-S) e de Interesse Específico (REURB-E).

Com uma equipe qualificada e o uso de excelentes tecnologias de cartografia, a empresa permite resultados precisos e confiáveis em todos os seus projetos.

Entre em Contato para Transformar sua Realidade Urbana!

Se o cliente busca soluções excelentes em regularização fundiária urbana e engenharia cartográfica, a PROURB é a empresa ideal para atender às suas necessidades.

Conte com a expertise e tecnologia de qualidade para possibilitar a conformidade e legalidade de núcleos urbanos, promovendo o desenvolvimento sustentável e a integração de áreas irregulares.

Entre em contato e conheça mais sobre o serviço e como a empresa pode ajudar a transformar sua realidade urbana com a cartografia digital!

Entre em contato agora mesmo!

Clique no botão e entre em contato para tirar dúvidas ou solicitar um orçamento.

Entre em contato



Principais cidades e regiões do Brasil onde a Prourb atende Cartografia digital:


WhatsApp Prourb
Prourb www.grupoprourb.com.br Online
Fale com a gente pelo WhatsApp
×