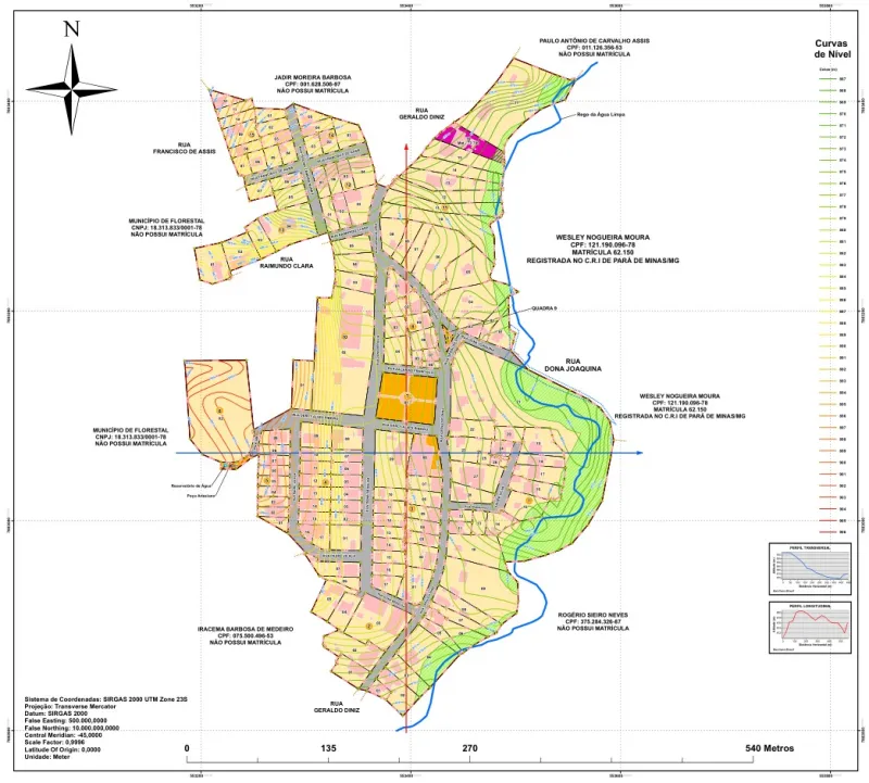
Georreferenciamento de área urbana

Clique nas imagens para ampliar

A Importância do Georreferenciamento de Área Urbana

O georreferenciamento de área urbana é um processo fundamental para a regularização fundiária e o desenvolvimento sustentável das cidades.

A empresa PROURB se destaca nesse segmento, oferecendo soluções completas em engenharia cartográfica e georreferenciamento, contribuindo para a conformidade jurídica e técnica de núcleos urbanos em todo o país.

Soluções Oferecidas pela PROURB

A PROURB, sediada em Nova Serrana, Minas Gerais, conta com uma equipe especializada e experiente que utiliza tecnologia própria, como o software RMS Urb, para realizar:

  • Diagnósticos socioeconômicos;
  • Aerolevantamento com drones;
  • Projetos de infraestrutura;
  • Parcelamento de solo.

Além disso, a empresa oferece suporte técnico a municípios e empresas parceiras, atendendo às diretrizes da Lei Federal 13.465 de 2017.

Benefícios do Georreferenciamento de Área Urbana

O georreferenciamento de área urbana realizado pela PROURB é essencial para a organização do cadastro técnico municipal e a regularização de bairros inteiros.

Ao mapear ruas, calçadas e lotes com coordenadas geográficas precisas, a empresa fornece uma base de dados confiável para o planejamento de infraestrutura e a correta cobrança de tributos municipais, proporcionando uma gestão eficiente por parte das prefeituras.

Georreferenciamento na Regularização Fundiária

No contexto da regularização fundiária, o georreferenciamento de área urbana é essencial para a integração de áreas irregulares ao contexto legal das cidades.

A PROURB atua com foco no processamento de REURB-S (interesse social) e REURB-E (interesse específico), promovendo a entrega de títulos de propriedade e proporcionando a segurança jurídica dos moradores de áreas urbanas informais.

Invista no Crescimento Ordenado das Cidades!

O rigor na coleta de informações espaciais realizado pela PROURB possibilita um crescimento ordenado das cidades, promovendo o desenvolvimento sustentável e a melhoria da qualidade de vida da população.

Com diagnósticos territoriais precisos e de excelente qualidade, a empresa contribui para uma gestão urbanística mais eficiente e transparente.

Se a sua empresa ou município necessita de serviços de georreferenciamento de área urbana de excelente qualidade e confiabilidade, entre em contato com a PROURB.

A empresa está preparada para oferecer soluções sob medida que atendam às suas necessidades de regularização fundiária e planejamento urbano!

Entre em contato agora mesmo!

Clique no botão e entre em contato para tirar dúvidas ou solicitar um orçamento.

Entre em contato



Principais cidades e regiões do Brasil onde a Prourb atende Georreferenciamento de área urbana:


WhatsApp Prourb
Prourb www.grupoprourb.com.br Online
Fale com a gente pelo WhatsApp
×